
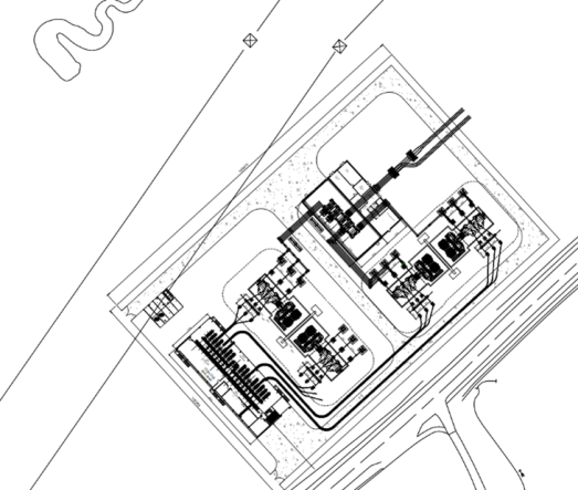
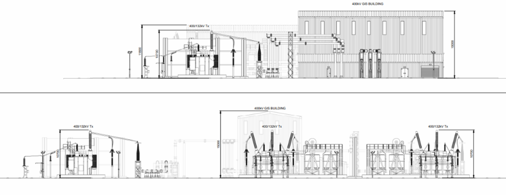
The project requires a mix of transmission and distribution infrastructure assets connected at 400KV, 132kV and 20kV designed for optimal performance for economic, efficient & timely delivery.
Omnia are engaged to option and optimize a realistic solution at the pre-FID (Financial Investment Decision) stage with sufficient development to budgetary price, and engage with key market suppliers. This includes:
• The existing National Grid Carrington 400.
• The new Cable from Carrington 400 to the new Eclipse 400/132kV Substation.
• The new Eclipse 400/132kV Substation – considering the onward connections to prospective data centre on OCGT locations.

